본문 바로가기

인천광역시 강화군 불은면 고능리 11-1 . 2가구주택, 대지 671평 // (70%) 559,572,000 > 부동산

본문 바로가기

쇼핑몰 검색

회원로그인

회원가입

오늘 본 상품 0

없음

목록  글쓰기  이전  다음

인천광역시 강화군 불은면 고능리 11-1 . 2가구주택, 대지 671평 // (70%) 559,572,000

페이지 정보

profile_image
작성자 좋은일이
댓글 댓글 0건   조회Hit 5,883회   작성일Date 25-01-23 10:43

본문

등록번호 1737596444
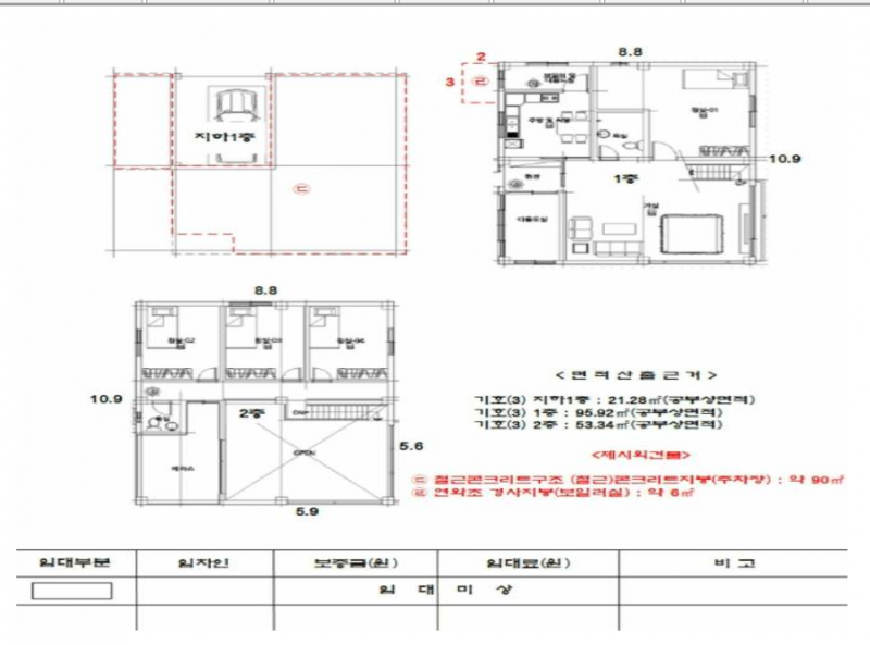
거래유형 주택2가구
면적 2218.2㎡
가격 (70%) 559,572,000
지역 인천 강화군
연락처 0
위치 인천광역시 강화군 불은면 고능리

25e9f5eb8db2ac9ce1e0843ae84d234eb9bac7d0.png

12422c48e21b8618e683985a73317462a8ddd076.png

f9173173767d18361609981b773b5c7ab6985b1e.png

e64046a07170e11715f415330f97eb07eea74ddd.png

25e9f5eb8db2ac9ce1e0843ae84d234eb9bac7d0.png

620889cc26999c474398869785564d54fb24668f.png

70563149875cab4fd15d618fbecac1eb2d504dc1.png

99b73317ba945902898e1233657b7ee5874fe38b.png

b614eb914f48ac2d324455c93c338149f7ebb9bc.png

f21b13fa6e7fbf9409db3866d001aed6977119a6.jpg


추천0
Total 21건 20 P
  •   글쓰기 
  •  
부동산

□ 월세   □ 전세   □ 매매

목록  이전   다음
  • 게시물이 없습니다.

검색