대전광역시 중구 보문로20번길 79 .4층 . 11가구. 다가구주택. 11가구 2018년식 // (49%) 591…
페이지 정보

본문
| 등록번호 | 1737247235 |
|---|---|
| 거래유형 | 다가구주택 |
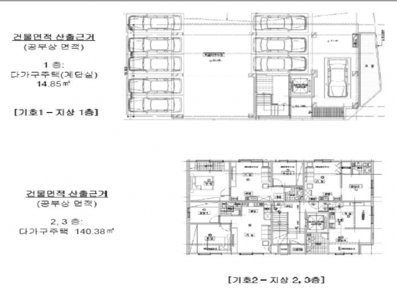
| 면적 | 290.9㎡ |
| 가격 | (49%) 591,347,000 |
| 지역 | 대전 중구 |
| 연락처 | 0 |
| 위치 | 대전광역시 중구 보문로20번길 79 |
![]()
![]()
![]()
![]()
![]()
![]()
![]()
![]()
![]()
![]()

추천0
국민은행 873237-04-014265
예금주 : 라이프칸
COPYRIGHT © 2023 라이프칸주식회사 ALL RIGHTS RESERVED.